ATS-3-AGS-ZKIT

Came drive for double-leaf gate, set with photocells

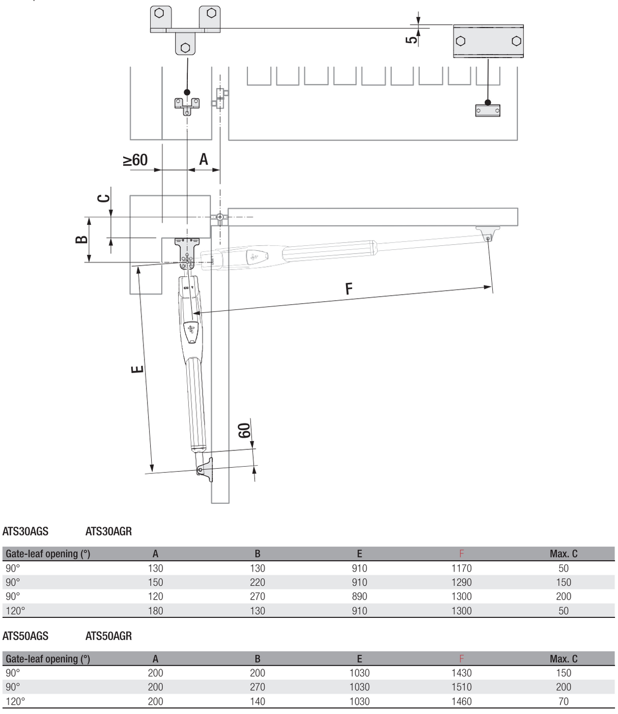
Mark: Came, Max. wing length: 3m, Recommended weight of the wing: 200kg, Frequency (MHz): 433, End point: No need end points, Motor power supply: AC 230V, Performance: 250W, Force: 400-3000N, Speed: 90° - 15s, Power supply: AC 230V, Type: Threaded, Controller: ZF1, Capacitor: 10uF

€696,75
without VAT
€857,00
with VAT


PCS
Stock availability
SK Krompachy > 25
SK Banská Bystrica 0
SK Bratislava R1 0

Contact

For more information, please contact our sales:

lubomir.petruska@umakov.sk
+421915093533 +393483490444

Description

Introducing the ATS-3-AGS drive, a top model from the Came brand, designed for swing gates with large and wide posts. The distance from the hinge axis to the edge of the post can be up to 200 mm. This version of the drive uses alternating current (AC), which brings several significant advantages for demanding users.

Advantages of the AC version:

  • Power and Stability: The AC drive provides constant power even under high load, ensuring reliable operation even for heavy and large gates, even in windy weather.
  • Durability and Long Life: AC motors are known for their robustness and durability, which means less maintenance and a longer lifespan for the entire system.
  • High Efficiency: AC drives operate with high efficiency, minimizing energy losses and ensuring efficient operation.
  • Easy Installation: The AC version of the ATS drive is designed for quick and easy installation, saving time and costs during assembly.
  • Compatibility with Various Installations: The AC drive is ideal for a wide range of applications, including residential and commercial gates, and is capable of operating in various climatic conditions.

Basic Features:

  • Electromechanical Drive: The ATS-3-AGS uses a reliable electromechanical system for smooth and efficient gate movement.
  • Automatic Closing: The automatic closing feature increases the convenience and security of your gate.
  • Manual Release Option: In the event of a power outage, the drive can be easily manually released, allowing immediate access.
  • Integrated Safety Features: Advanced safety features ensure property protection and safe gate operation.

The ATS-3-AGS is the ideal solution for anyone looking for a reliable and powerful drive for swing gates. Contact us for more information or to obtain a quote!

Parameters

Mark
Information about producer of product
Came
Max. wing length
Maximum wing length for the given drive
3m
Recommended weight of the wing
Odporúčaná hmotnosť krídla brány pre správnu funkčnosť pohonu.
200kg
Type
Threaded
Frequency (MHz)
Určuje frekvenciu ovládača a riadiacej elektroniky.
433
End point
Information about the need for gate end stops with the selected drive.
No need end points
Power supply
Type and value of the power supply voltage
AC 230V
Motor power supply
Type and value of the motor supply voltage
AC 230V
Performance
250W
Force
400-3000N
Speed
Parameter of the drive feed speed
90° - 15s
Controller
ZF1
Capacitor
10uF

Parts of set

CAME drive for swing gate ATS-30-AGS

2 pcs
Mark
Came
Max. wing length
3m
Recommended weight of the wing
200kg

Radio card 433,9 MHz AF-43-S

1 pcs
Mark
Came

Remote controller CAME TOP roling code, 4CH, CAME TOP44RBN

1 pcs
Mark
Came
Frequency (MHz)
433
Code type
Rolling

Photocell for plaster montage max. 10m DIR-10

1 pcs
Mark
Came
Power supply
12-24V AC
Protection level
IP54

Catalog list

Came drive for double-leaf gate, set with photocells
umakovshop-com

Came drive for double-leaf gate, set with photocells

€696,75

Introducing the ATS-3-AGS drive, a top model from the Came brand, designed for swing gates with large and wide posts. The distance from the hinge axis to the edge of the post can be up to 200 mm. This version of the drive uses alternating current (AC), which brings several significant advantages for demanding users.

Advantages of the AC version:

Basic Features:

The ATS-3-AGS is the ideal solution for anyone looking for a reliable and powerful drive for swing gates. Contact us for more information or to obtain a quote!

View product