FS-250

Folding mechanism for swing gates

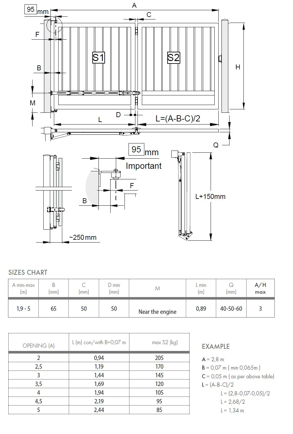
Material: Steel, Surface finish: Galvanized, A: 1900-5000, B: 40/50/60

€836,38
without VAT
€1.028,75
with VAT


PCS
Stock availability
SK Krompachy > 10
SK Banská Bystrica 0
SK Bratislava R1 0

Contact

For more information, please contact our sales:

lubomir.petruska@umakov.sk
+421915093533 +393483490444

Description

Complete set of mechanism for swing gates. This system, when properly installed, ensures the folding of the gate wing, reducing the length of the wing when opened. Suitable for swing gates with limited space when opening or with significant terrain elevation. The gate frame construction needs to be adjusted according to the instructions. The set includes parts for one wing. For a double-wing gate, it is necessary to purchase 2 units. The mechanism is suitable for a total wing length from 1.9m to 5m.

Parameters

Material
Defines the material from which the product is made.
Steel
Surface finish
Surface finish of product
Galvanized
A
1900-5000
B
40/50/60

Catalog list

Folding mechanism for swing gates
umakovshop-com

Folding mechanism for swing gates

€836,38
Complete set of mechanism for swing gates. This system, when properly installed, ensures the folding of the gate wing, reducing the length of the wing when opened. Suitable for swing gates with limited space when opening or with significant terrain elevation. The gate frame construction needs to be adjusted according to the instructions. The set includes parts for one wing. For a double-wing gate, it is necessary to purchase 2 units. The mechanism is suitable for a total wing length from 1.9m to 5m.
View product